1 stanza appartamento a Fiorano Modenese
-
Area
- 95 m²
-
Tipo di proprietà
- Appartamento
-
Stanze
- 1 stanza
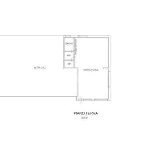
Rif: F794 - Riferimento immobile F794 *affitto* Stai cercando una soluzione in affitto vicino alla Ferrari? Cerchi un immobile a Spezzano? La Tempocasa ha quello che fa per te! Proponiamo in affitto ampio monolocale arredato al piano terra. Questa spaziosa e luminosa soluzione si trova al piano terra di un edificio senza ascensore. L'ingresso conduce ad un soggiorno luminoso con cucina, completa di lavastoviglie, perfetta per trascorrere momenti piacevoli con amici e familiari. La camera da letto è ben divisa e offre spazio sufficiente per u...
- Affitto
- 1.100 € al mese
- Posizione
- 41042, Fiorano Modenese
- Periodo di affitto
- -
- Proprietario verificato
- Sì
- Data
- 31 giorni fa
- Disponibile
- Contatta il proprietario
- Utenze
- Contatta il proprietario
- Deposito
- Contatta il proprietario
- Affitto anticipato
- Contatta il proprietario
Posizione