1 stanza appartamento a Genova
-
Area
- 77 m²
-
Tipo di proprietà
- Appartamento
-
Stanze
- 1 stanza
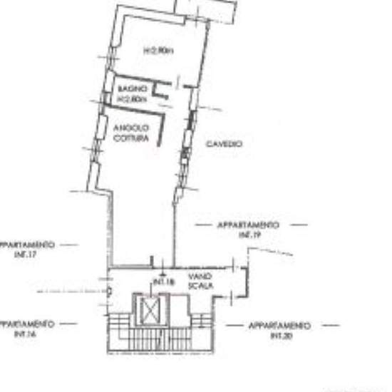
Agenzia immobiliare Fondocasa Exclusive, Affiliato di Genova, Via Cesarea, propone in affitto carinissimo bilocale di ampia metratura in Via Colombo, nel pieno centro di Genova, adiacente alla Stazione Brignole ed a Via Venti Settembre. In contesto signorile, posto al quarto piano con ascensore, questo appartamento decisamente ordinato e quasi completamente arredato, è così composto: dall' ingresso, con porta blindata, ci portiamo direttamente nella grande zona giorno, molto silenziosa e luminosa. Su di essa insiste il cucinotto, completamen...
- Affitto
- 1.000 € al mese
- Posizione
- 16121, Genova
- Periodo di affitto
- -
- Proprietario verificato
- Sì
- Data
- 15 giorni fa
- Disponibile
- Contatta il proprietario
- Utenze
- Contatta il proprietario
- Deposito
- Contatta il proprietario
- Affitto anticipato
- Contatta il proprietario
Posizione