10 stanza appartamento a Scandicci
-
Area
- 200 m²
-
Tipo di proprietà
- Appartamento
-
Stanze
- 10 stanze
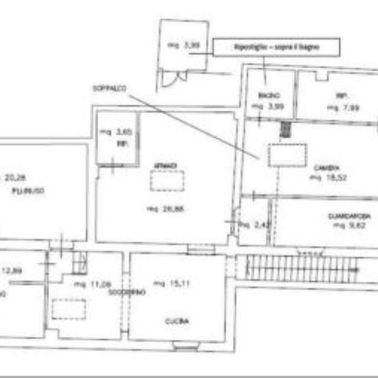
Affitto porzione colonica luminosa, silenziosa e tranquilla sulle colline di Firenze. Ristrutturata e finemente arredata nel 2025, in Casale, con travi a vista, 4metri altezza, circa 200m2 due camere matrimoniali e una singola, due bagni (uno padronale e l’altro con jacuzzi), studio, salotto con divano letto matrimoniale, sala da pranzo e cucina con vista sulle colline. Giardino privato, recintato 900m2 con veranda coperta di 16m2 con tavolo e panche (animali ammessi). Parcheggio privato gratuito per 2 auto. A 2km supermercato, banca, atm, p...
- Affitto
- 2.000 € al mese
- Posizione
- 50018, Scandicci
- Periodo di affitto
- -
- Proprietario verificato
- Sì
- Data
- 19 giorni fa
- Disponibile
- Contatta il proprietario
- Utenze
- Contatta il proprietario
- Deposito
- Contatta il proprietario
- Affitto anticipato
- Contatta il proprietario
Posizione