2 stanza appartamento a Bologna
-
Area
- 55 m²
-
Tipo di proprietà
- Appartamento
-
Stanze
- 2 stanze
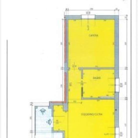
Rif: 3274 - codice riferimento immobile: 3274 Bolognina / Fiera, situato in una zona tranquilla e ben servita, Immobiliare Guido Reni propone in locazione da subito, luminoso appartamento di circa 55 mq, recentemente ristrutturato e completamente arredato con mobili moderni in perfette condizioni, posto al piano ammezzato di condominio signorile. L’immobile è composto da ingresso su soggiorno con divano letto e cucina a vista completa di tutti gli elettrodomestici e già provvista di lavastoviglie, disimpegno giorno / notte arredabile, spazio...
- Affitto
- 900 € al mese
- Posizione
- 40128, Bologna
- Periodo di affitto
- -
- Proprietario verificato
- Sì
- Data
- 15 giorni fa
- Disponibile
- Contatta il proprietario
- Utenze
- Contatta il proprietario
- Deposito
- Contatta il proprietario
- Affitto anticipato
- Contatta il proprietario
Posizione