2 stanza appartamento a Bologna
-
Area
- 60 m²
-
Tipo di proprietà
- Appartamento
-
Stanze
- 2 stanze
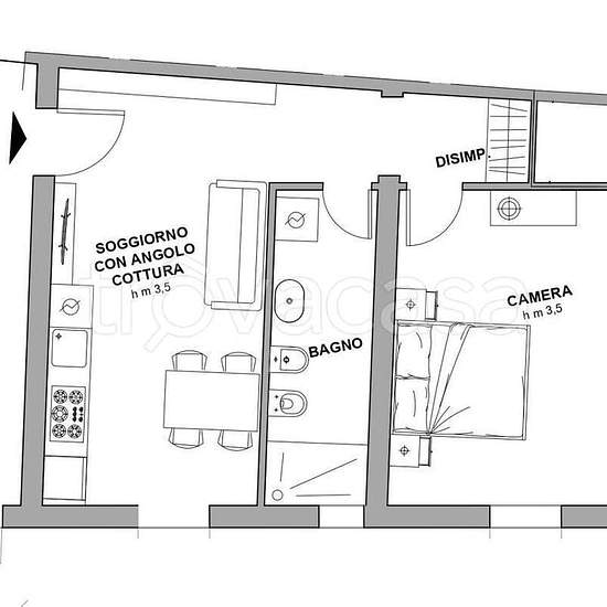
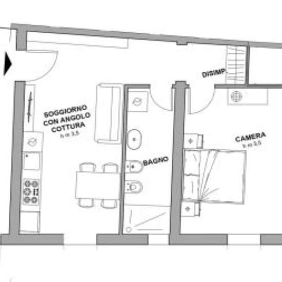
In posizione riservata e silenziosa, proponiamo in affitto un bilocale completamente ristrutturato, situato in una piccola palazzina con accesso da un curato giardino condominiale. L’appartamento, luminoso e ben distribuito, è composto da ingresso su zona giorno con angolo cottura, ampia camera matrimoniale e bagno finestrato con box doccia. Gli ambienti sono stati recentemente rinnovati con finiture moderne e impianti a norma. Attualmente da arredare, verrà consegnato completamente arredato a nuovo, con mobilio moderno e funzionale fornito ...
- Affitto
- 1.080 € al mese
- Posizione
- 40123, Bologna
- Periodo di affitto
- -
- Proprietario verificato
- Sì
- Data
- 13 giorni fa
- Disponibile
- Contatta il proprietario
- Utenze
- Contatta il proprietario
- Deposito
- Contatta il proprietario
- Affitto anticipato
- Contatta il proprietario
Posizione