2 stanza appartamento a Milano
-
Area
- 59 m²
-
Tipo di proprietà
- Appartamento
-
Stanze
- 2 stanze
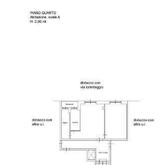
Libero da fine ottobre. Luminosissimo bilocale in via Lorenteggio a pochi metri dalla metropolitana m4 di piazza Frattini. Zona completamente servita e ben collegata con il centro di Milano. Appartamento composto da ingresso con soggiorno, camera da letto con grande armadio angolare, cucina separata con balcone e bagno. Stabile con ascensore e portineria mezza giornata
- Affitto
- 1.200 € al mese
- Posizione
- 20146, Milano
- Periodo di affitto
- -
- Proprietario verificato
- Sì
- Data
- 13 giorni fa
- Disponibile
- Contatta il proprietario
- Utenze
- 150 €
- Deposito
- Contatta il proprietario
- Affitto anticipato
- Contatta il proprietario
Posizione