2 stanza appartamento a Milano

Area
68 m²
Tipo di proprietà
Appartamento
Stanze
2 stanze

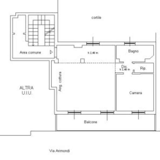
Elegante, luminoso e spazioso appartamento ristrutturato e arredato, in stabile signorile, sito al quinto e ultimo piano con ascensore, aria condizionata, terrazzino e bellissimo affaccio.Internet fibra (predisposizione) e tv. La pianta, è caratterizzata da ingresso, ampio soggiorno con cucina a vista,camera,servizi e ripostiglio con lavanderia. La cucina, completamente arredata. Il riscaldamento è centralizzato (incluso nelle spese condominiali). Le camere sono dotate di aria condizionata. Una cantina di circa 4 mq completa la dotazione del...

Affitto
1.600 € al mese
Posizione
20155, Milano
Periodo di affitto
-
Proprietario verificato
Data
18 giorni fa
Disponibile
Contatta il proprietario
Utenze
Contatta il proprietario
Deposito
Contatta il proprietario
Affitto anticipato
Contatta il proprietario
Posizione