2 stanza appartamento a Milano
-
Area
- 57 m²
-
Tipo di proprietà
- Appartamento
-
Stanze
- 2 stanze
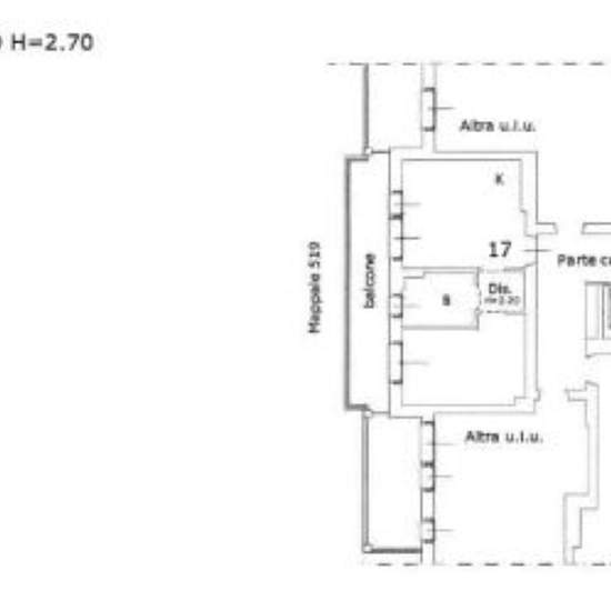
Zona Ripamonti Quartiere Vigentino Fatima In elegante e moderno quartiere, nelle vicinanze della fondazione Prada e dell’università Bocconi, proponiamo in locazione signorile appartamento di recente costruzione in Classe energetica a. L’appartamento è posto al terzo piano, dotato di ascensore ed composto da: soggiorno, cucina, camera, bagno, un bel terrazzo con parapetti vetrati, cantina e box. Riscaldamento e raffrescamento a pavimento, videocitofono, porta blindata. Cucina arredata e armadiature nella zona notte.
- Affitto
- 1.300 € al mese
- Posizione
- 20141, Milano
- Periodo di affitto
- -
- Proprietario verificato
- Sì
- Data
- 14 giorni fa
- Disponibile
- Contatta il proprietario
- Utenze
- Contatta il proprietario
- Deposito
- Contatta il proprietario
- Affitto anticipato
- Contatta il proprietario
Posizione