2 stanza appartamento a Milano

Area
72 m²
Tipo di proprietà
Appartamento
Stanze
2 stanze

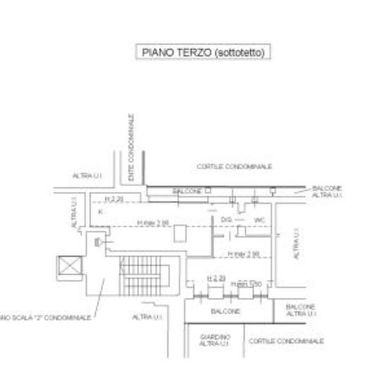
L'appartamento si trova all’ultimo piano di un complesso molto particolare, ben abitato e curato esattamente sopra la fermata della Metropolitana Linea 1 Precotto, da cui è possibile raggiungere velocemente luoghi d’interesse come Duomo (10min), Università Bicocca (10min), Piazzale Loreto e Corso Buenos Aires (5min). All’ingresso verrete accolti da una maestosa villa degli anni 30, che domina l’ampio cortile. Grazie alle grandi vetrate risulta luminosissimo e grazie alla posizione risulta molto silenzioso poiché distante dalla strada. E’ com...

Affitto
1.500 € al mese
Posizione
20126, Milano
Periodo di affitto
-
Proprietario verificato
Data
13 giorni fa
Disponibile
Contatta il proprietario
Utenze
Contatta il proprietario
Deposito
Contatta il proprietario
Affitto anticipato
Contatta il proprietario
Posizione