2 stanza appartamento a Milano
-
Area
- 60 m²
-
Tipo di proprietà
- Appartamento
-
Stanze
- 2 stanze
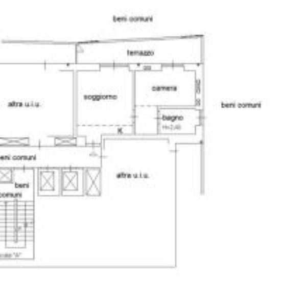
Via Pasolini 74, Living Milano Immobiliare propone in locazione un appartamento di 60 mq circa con ampio terrazzo vista sull'ampio giardino condominiale, posto al terzo piano con doppio ascensore di un Palazzo di nuova costruzione del 2018 con servizio di portineria full time e palestra condominiale. • disposizione ambienti L’immobile è composto da ingresso, soggiorno con cucina a vista e accesso all’ampio terrazzo loggiato con vista sull'ampio giardino e sul giardino, camera da letto matrimoniale con accesso al terrazzo e bagno con doccia f...
- Affitto
- 1.300 € al mese
- Posizione
- 20151, Milano
- Periodo di affitto
- -
- Proprietario verificato
- Sì
- Data
- 5 giorni fa
- Disponibile
- Contatta il proprietario
- Utenze
- Contatta il proprietario
- Deposito
- Contatta il proprietario
- Affitto anticipato
- Contatta il proprietario
Posizione