2 stanza appartamento a Milano
-
Area
- 70 m²
-
Tipo di proprietà
- Appartamento
-
Stanze
- 2 stanze
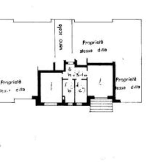
Milano - zona mecenate - via attilio regolo 2 - ampio bilocale libero subito L’agenzia immobiliare Bonola Case propone in locazione ampio bilocale, di 70 mq c.A., arredato come da foto, sito all'interno di un contesto condominiale con servizio di portineria full time e curatissimo giardino. L'unita abitativa, che si presenta in buone condizioni interne, è composta da: ingresso, ampio soggiorno con accesso al balcone, cucina abitabile, camera matrimoniale e bagno. Completa la proprietà un comodo solaio. Tra le finiture e dotazioni segnaliamo ...
- Affitto
- 850 € al mese
- Posizione
- 20138, Milano
- Periodo di affitto
- -
- Proprietario verificato
- Sì
- Data
- 32 giorni fa
- Disponibile
- Contatta il proprietario
- Utenze
- Contatta il proprietario
- Deposito
- Contatta il proprietario
- Affitto anticipato
- Contatta il proprietario
Posizione