2 stanza appartamento a Milano
-
Area
- 51 m²
-
Tipo di proprietà
- Appartamento
-
Stanze
- 2 stanze
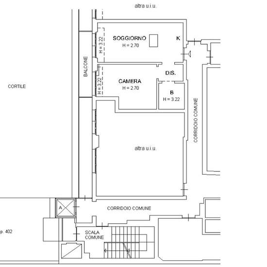
Milano, Zona p.Za Firenze, nel nuovo condominio "Residenze Continental" situato in una palazzina interna rispetto a Viale Certosa, con palestra e locale lavanderia condominiali, proponiamo in affitto bilocale appena ristrutturato ed arredato posto al 2° ed ultimo piano di uno stabile interamente ristrutturato negli interni. L'immobile è così disposto: si accede all'ingresso che introduce ad un soggiorno con angolo cottura e servito da una balconata. Un disimpegno conduce alla zona notte che consta da un lato di un bagno con doccia e dall'alt...
- Affitto
- 900 € al mese
- Posizione
- 20155, Milano
- Periodo di affitto
- -
- Proprietario verificato
- Sì
- Data
- 2 giorni fa
- Disponibile
- Contatta il proprietario
- Utenze
- Contatta il proprietario
- Deposito
- Contatta il proprietario
- Affitto anticipato
- Contatta il proprietario
Posizione