2 stanza appartamento a Milano
-
Area
- 53 m²
-
Tipo di proprietà
- Appartamento
-
Stanze
- 2 stanze
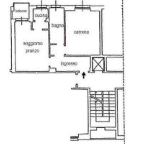
In Via Cardinal Mezzofanti, zona Viale Argonne affittasi grazioso bilocale piano terzo in casa signorile degli anni '60. L'appartamento è stato completamente ristrutturato. Troviamo un ingresso, un ampio soggiorno con divano letto, una cucina a vista e un grazioso balcone che si affaccia sul giardino condominiale. Nella zona notte il bagno finestrato con doccia e un'ampia camera matrimoniale. La cucina purché piccola è dotata di lavastoviglie, forno e un frigorifero con freezer a parte. Il riscaldamento è centralizzato a pavimento e l'acqua ...
- Affitto
- 1.200 € al mese
- Posizione
- 20133, Milano
- Periodo di affitto
- -
- Proprietario verificato
- Sì
- Data
- 10 giorni fa
- Disponibile
- Contatta il proprietario
- Utenze
- Contatta il proprietario
- Deposito
- Contatta il proprietario
- Affitto anticipato
- Contatta il proprietario
Posizione