2 stanza appartamento a Roma
-
Area
- 110 m²
-
Tipo di proprietà
- Appartamento
-
Stanze
- 2 stanze
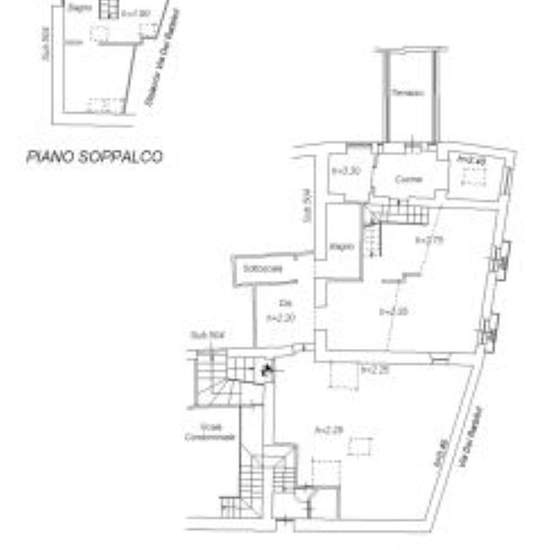
Elegante Attico in Affitto nel Cuore di Roma – Piazza di Torre Argentina Nel prestigioso contesto del centro storico di Roma, a pochi passi dai più celebri monumenti e caffè culturali della città eterna, proponiamo in affitto un affascinante attico di 110 mq distribuiti su due livelli, situato all’ultimo piano di un palazzo d’epoca di fine '800, con ascensore (ultima rampa a piedi). L’appartamento si apre su una zona living luminosa, che introduce ad un raffinato ambiente soggiorno-pranzo con soffitti in travi a vista e pavimenti in parquet....
- Affitto
- 3.500 € al mese
- Posizione
- 00186, Roma
- Periodo di affitto
- -
- Proprietario verificato
- Sì
- Data
- 14 giorni fa
- Disponibile
- Contatta il proprietario
- Utenze
- Contatta il proprietario
- Deposito
- Contatta il proprietario
- Affitto anticipato
- Contatta il proprietario
Posizione