2 stanza appartamento a Roma
-
Area
- 110 m²
-
Tipo di proprietà
- Appartamento
-
Stanze
- 2 stanze
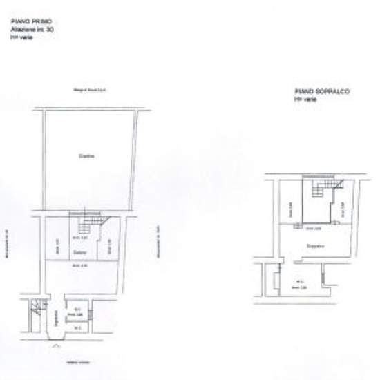
Duration of contract maximum 18 months with bank guarantee . In the heart of the historic center between Piazza del Popolo and Piazza di Spagna in a charming condo located in Via Margutta we offer a 100 sqm loft with terrace (50sqm) completely and elegantly refurbished. Description: on the first floor entrance, a spacious livingroom with exit on the wonderful terrace, kitchenette, guest bathroom and guest closet. On the second floor: spacious bedroom with bathroom and walk in closet. Available from December 1st. Info H24 6 Non disponibile pe...
- Affitto
- 4.000 € al mese
- Posizione
- 00187, Roma
- Periodo di affitto
- -
- Proprietario verificato
- Sì
- Data
- 14 giorni fa
- Disponibile
- Contatta il proprietario
- Utenze
- Contatta il proprietario
- Deposito
- Contatta il proprietario
- Affitto anticipato
- Contatta il proprietario
Posizione