2 stanza appartamento a Rozzano
-
Area
- 60 m²
-
Tipo di proprietà
- Appartamento
-
Stanze
- 2 stanze
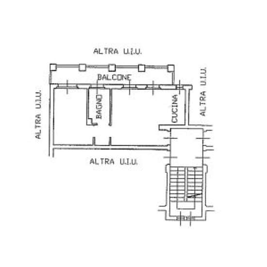
Rozzano - zona Rozzano Vecchio, in contesto residenziale circondato dal verde, adiacente al parco delle Rogge, splendido appartamento di due locali di mq. 60ca composto da ingresso, ampio soggiorno con angolo cottura, disimpegno zona notte, bagno con doccia appena rifatto, camera matrimoniale e terrazzino. Porta blindata, serramenti in legno con doppivetri, predisposizione aria condizionata, ceramica monocottura zona giorno, parquet nella camera matrimoniale. Contratto 4+4 in cedolare secca, solo persone referenziate con contratto a tempo in...
- Affitto
- 900 € al mese
- Posizione
- 20089, Rozzano
- Periodo di affitto
- -
- Proprietario verificato
- Sì
- Data
- 30 giorni fa
- Disponibile
- Contatta il proprietario
- Utenze
- Contatta il proprietario
- Deposito
- Contatta il proprietario
- Affitto anticipato
- Contatta il proprietario
Posizione