2 stanza appartamento a Sannazzaro De' Burgondi
-
Area
- 67 m²
-
Tipo di proprietà
- Appartamento
-
Stanze
- 2 stanze
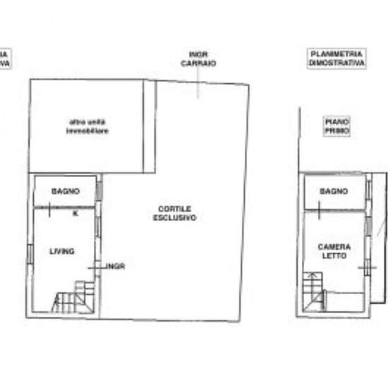
Proposta di Locazione in esclusiva di Studio Immobiliare media services - Mediazioni Immobiliari Professionali. Sannazzaro d.B. (vicinanze) Comune di ferrera erbognone, corso della Repubblica n° 84/k. Affittasi solo referenziati. Casa indipendente con cortile esclusivo, disposta su due livelli abitativi e così composta: ingresso indipendente, zona living con cucina a vista, bagno/lavanderia, camera letto matrimoniale, bagno padronale, balcone, posto auto scoperto, cortile di proprietà esclusiva di circa 70 metri quadrati. Dotazioni: arredame...
- Affitto
- 500 € al mese
- Posizione
- 27039, Sannazzaro De' Burgondi
- Periodo di affitto
- -
- Proprietario verificato
- Sì
- Data
- 30 giorni fa
- Disponibile
- Contatta il proprietario
- Utenze
- Contatta il proprietario
- Deposito
- Contatta il proprietario
- Affitto anticipato
- Contatta il proprietario
Posizione