2 stanza appartamento a Sesto San Giovanni
-
Area
- 67 m²
-
Tipo di proprietà
- Appartamento
-
Stanze
- 2 stanze
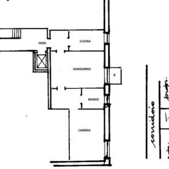
Lo Studio Immobiliare Mc Domus propone in locazione 2 locali di circa 67 mq, sito al 4 piano, inserito all’interno di condominio di tipo civile. L'appartamento è così composto: Ingresso in disimpegno, soggiorno con balcone, cucina abitabile, ampia camera matrimoniale e servizi; è inoltre presente un balcone da cui è si accede direttamente dalla zona giorno. L'immobile gode di un'ottima luminosità grazie alla posizione del piano alto e di un gradevole affaccio. Completa la soluzione una cantina di pertinenza. La soluzione immobiliare sarà lib...
- Affitto
- 820 € al mese
- Posizione
- 20099, Sesto San Giovanni
- Periodo di affitto
- -
- Proprietario verificato
- Sì
- Data
- 8 giorni fa
- Disponibile
- Contatta il proprietario
- Utenze
- Contatta il proprietario
- Deposito
- Contatta il proprietario
- Affitto anticipato
- Contatta il proprietario
Posizione