2 stanza appartamento a Torino
-
Area
- 70 m²
-
Tipo di proprietà
- Appartamento
-
Stanze
- 2 stanze
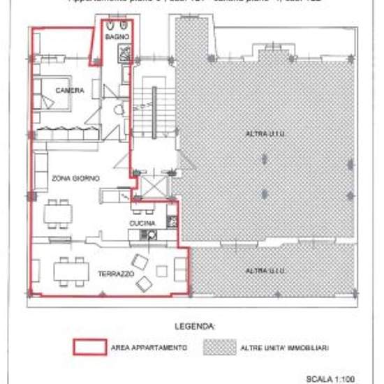
Libero da Maggio! In zona Santa Rita, in una posizione comoda e ben servita, proponiamo in affitto appartamento di circa 70 mq con bellissimo terrazzo. L'immobile si trova al sesto piano di un palazzo dotato di ascensore. Le spese condominiali ammontano a 200 euro mensili e comprendono anche l'acqua ed il riscaldamento centralizzato. L'appartamento è composto da un ampio soggiorno, una cucina separata, una spaziosa camera da letto e un bagno con doccia e lavatrice. L'appartamento è stato oggetto recentemente di una totale ristrutturazione, p...
- Affitto
- 1.000 € al mese
- Posizione
- 10137, Torino
- Periodo di affitto
- -
- Proprietario verificato
- Sì
- Data
- 14 giorni fa
- Disponibile
- Contatta il proprietario
- Utenze
- Contatta il proprietario
- Deposito
- Contatta il proprietario
- Affitto anticipato
- Contatta il proprietario
Posizione