2 stanza appartamento a Vicenza
-
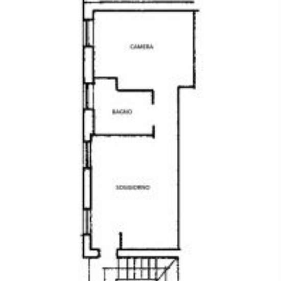
Area
- 45 m²
-
Tipo di proprietà
- Appartamento
-
Stanze
- 2 stanze
A pochi passi da Piazza delle Poste, in pieno centro storico, proponiamo in affitto un appartamento situato al terzo piano di un palazzetto d'epoca. La posizione è molto comoda per chi desidera vivere vicino a tutti i principali servizi, negozi e mezzi pubblici. L’immobile è stato ristrutturato di recente e si presenta in ottime condizioni. Gli spazi sono ben distribuiti e curati, con finiture moderne e funzionali. La zona giorno è luminosa e accogliente, composta da un soggiorno con cucina a vista e accesso a un terrazzo, ideale per prender...
- Affitto
- 680 € al mese
- Posizione
- 36100, Vicenza
- Periodo di affitto
- -
- Proprietario verificato
- Sì
- Data
- 8 giorni fa
- Disponibile
- Contatta il proprietario
- Utenze
- Contatta il proprietario
- Deposito
- Contatta il proprietario
- Affitto anticipato
- Contatta il proprietario
Posizione