2 stanza casa a Imola
-
Area
- 78 m²
-
Tipo di proprietà
- Casa
-
Stanze
- 2 stanze
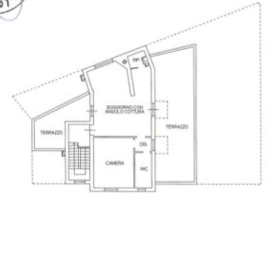
Attico luminoso, esposizione 360°, posto al secondo piano su rialzato, di un edificio indipendente. Completano l'unità, una terrazza solarium di mq.60 e un'altra da mq.20 e, al piano rialzato un locale(cantina).L'attico si presenta su un ingresso open space: soggiorno, con nicchia cucina e ripostiglio, antibagno, bagno nuovo con doccia e, ampia camera letto.Recenti infissi estrni in alluminio. Spese condominiali irrisorie. Indispensabile fidejussione bancaria a garanzia. Immobile libero. No periodi brevi. Contattare solo se in possesso requi...
- Affitto
- 1.500 € al mese
- Posizione
- 40026, Imola
- Periodo di affitto
- -
- Proprietario verificato
- Sì
- Data
- 20 giorni fa
- Disponibile
- Contatta il proprietario
- Utenze
- Contatta il proprietario
- Deposito
- Contatta il proprietario
- Affitto anticipato
- Contatta il proprietario
Posizione