3 stanza appartamento a Alba
-
Area
- 123 m²
-
Tipo di proprietà
- Appartamento
-
Stanze
- 3 stanze
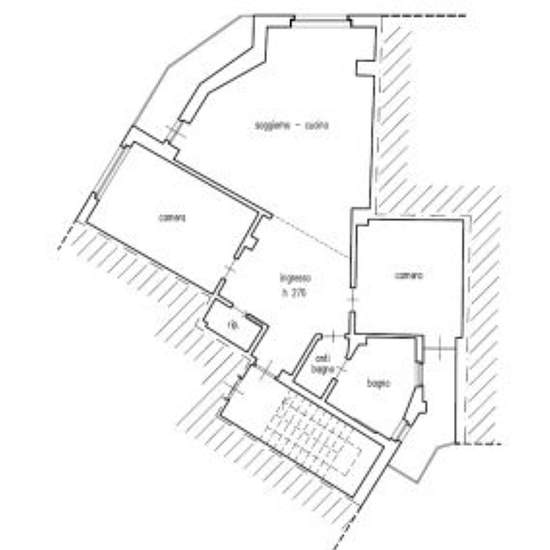
In centro storico ad Alba, 100 metri da Piazza Michele Ferrero, comodo a tutti i servizi, proponiamo in affitto un ampio trilocale da arredare situato al primo piano di un condominio servito da ascensore. L'immobile è composto da ingresso su ampio e luminoso soggiorno con angolo cottura, due camere da letto, antibagno ed ampio bagno finestrato con doccia, ripostiglio e due balconi. Completa la proprietà un garage doppio con portone automatico e una cantina al piano terra. Possibilità inoltre di parcheggiare all'interno del cortile, ma i post...
- Affitto
- 1.050 € al mese
- Posizione
- 12051, Alba
- Periodo di affitto
- -
- Proprietario verificato
- Sì
- Data
- 29 giorni fa
- Disponibile
- Contatta il proprietario
- Utenze
- Contatta il proprietario
- Deposito
- Contatta il proprietario
- Affitto anticipato
- Contatta il proprietario
Posizione