3 stanza appartamento a Bologna
-
Area
- 80 m²
-
Tipo di proprietà
- Appartamento
-
Stanze
- 3 stanze
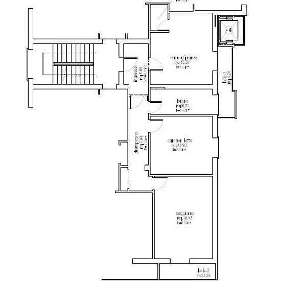
Via massarenti (chiesa di santa rita) appartamento arredato posto all'ultimo piano con ascensore composto da ingresso, ampio soggiorno, cucina abitabile con balcone, camera da letto, bagno ripostiglio e cantina. Aria condizionata 1.200 mensili
- Affitto
- 1.200 € al mese
- Posizione
- 40138, Bologna
- Periodo di affitto
- -
- Proprietario verificato
- Sì
- Data
- 14 giorni fa
- Disponibile
- Contatta il proprietario
- Utenze
- Contatta il proprietario
- Deposito
- Contatta il proprietario
- Affitto anticipato
- Contatta il proprietario
Posizione