3 stanza appartamento a Bologna
-
Area
- 90 m²
-
Tipo di proprietà
- Appartamento
-
Stanze
- 3 stanze
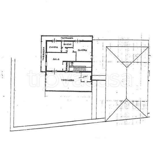
Rif: 3283 - codice di riferimento immobile: 3283 Zona Murri (Chiesa Nuova) / Via Delle Fragole, Immobiliare Guido Reni propone in locazione da subito, bellissimo attico parzialmente arredato (cucina, bagno e nelle camere sono già previste delle armadiature), posto al secondo ed ultimo piano di palazzina signorile di poche unità immobiliari, non servito da ascensore. L’appartamento dispone di un terrazzo di circa 60 mq con un comodo ambiente coperto già attrezzato a zona lavanderia, l’accesso al terrazzo è diretto dal soggiorno oltre ad un am...
- Affitto
- 1.500 € al mese
- Posizione
- 40137, Bologna
- Periodo di affitto
- -
- Proprietario verificato
- Sì
- Data
- 7 giorni fa
- Disponibile
- Contatta il proprietario
- Utenze
- Contatta il proprietario
- Deposito
- Contatta il proprietario
- Affitto anticipato
- Contatta il proprietario
Posizione