3 stanza appartamento a Cernusco Sul Naviglio
-
Area
- 96 m²
-
Tipo di proprietà
- Appartamento
-
Stanze
- 3 stanze
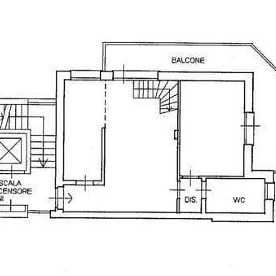
Rif: 746v - affitto vuoto - in palazzina di recente costruzione in classe energetica a2, proponiamo in affitto un trilocale duplex servito da ascensore. L'appartamento non è arredato. Posto al secondo piano con ascensore, l'immobile è composto da soggiorno, cucina semi-abitabile, camera matrimoniale e bagno finestrato. Tramite scala in muratura si accede al piano mansardato abitabile, caratterizzato da travi in legno a vista. Il piano ospita un ampio ambiente open-space con terrazzino ed un servizio con box doccia. Completa la proprietà un b...
- Affitto
- 1.100 € al mese
- Posizione
- 20063, Cernusco Sul Naviglio
- Periodo di affitto
- -
- Proprietario verificato
- Sì
- Data
- 22 giorni fa
- Disponibile
- Contatta il proprietario
- Utenze
- 250 €
- Deposito
- Contatta il proprietario
- Affitto anticipato
- Contatta il proprietario
Posizione