3 stanza appartamento a Firenze
-
Area
- 75 m²
-
Tipo di proprietà
- Appartamento
-
Stanze
- 3 stanze
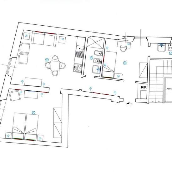
Piazza dei Nerli - San Frediano - Signorile trivani al primo piano con ascensore, finemente ristrutturato e completamente arredato. Silenzioso con affacci gradevoli in splendido stabile. Facilità di parcheggio. Contratto 4+4 no cedolare secca. Possibile contratto a società (no sublocazione Ubicazione Piazza dei Nerli, e nel quartiere di San Frediano subito prima del varco ztl. Il Polimoda, il centro storico, la tranvia e la stazione centrale si raggiungono in pochi minuti. Facilità di parcheggio libero per residenti/autorizzati nella zona, o...
- Affitto
- 1.950 € al mese
- Posizione
- 50124, Firenze
- Periodo di affitto
- -
- Proprietario verificato
- Sì
- Data
- 14 giorni fa
- Disponibile
- Contatta il proprietario
- Utenze
- Contatta il proprietario
- Deposito
- Contatta il proprietario
- Affitto anticipato
- Contatta il proprietario
Posizione