3 stanza appartamento a Loano
-
Area
- 70 m²
-
Tipo di proprietà
- Appartamento
-
Stanze
- 3 stanze
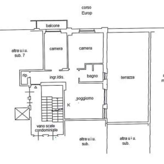
Trilocale di recente realizzazione!! - climatizzato Codice di riferimento: A054 - Codice citra:lt-1541 Cin: itb4zbwbngjt Affitto annuale contratto esclusivamente uso turistico - Max 18 mensilità (senza residenza) canone € 750,00 mensile escluse spese condominiali e utenze. Si richiede due mensilità come deposito cauzionale e documentazione del reddito. Disponibile da gennaio 2026 Trilocale in centro paese modernamente arredato curato nei particolari, a pochi passi dal mare, disposto internamente da soggiorno living con monoblocco cucina a vi...
- Affitto
- 750 € al mese
- Posizione
- 17025, Loano
- Periodo di affitto
- -
- Proprietario verificato
- Sì
- Data
- 30 giorni fa
- Disponibile
- Contatta il proprietario
- Utenze
- Contatta il proprietario
- Deposito
- Contatta il proprietario
- Affitto anticipato
- Contatta il proprietario
Posizione