3 stanza appartamento a Mariano Comense
-
Area
- 83 m²
-
Tipo di proprietà
- Appartamento
-
Stanze
- 3 stanze
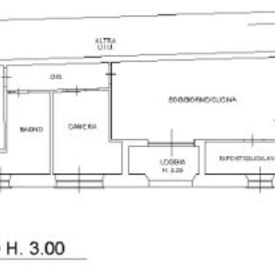
Mariano comense – In tranquilla zona residenziale, proponiamo in locazione trilocale non arredato disponibile sia al primo piano e secondo piano (senza ascensore) composta da sole 6 unità abitative. Attualmente in fase di ultimazione dei lavori di ristrutturazione, sarà disponibile da settembre. L'appartamento, curato nei dettagli e ben distribuito, è così composto: soggiorno con cucina a vista e accesso a loggia coperta di 6 mq, due camere da letto, bagno finestrato con disimpegno, locale ripostiglio/lavanderia. Dotato di impianto di climat...
- Affitto
- 950 € al mese
- Posizione
- 22066, Mariano Comense
- Periodo di affitto
- -
- Proprietario verificato
- Sì
- Data
- 30 giorni fa
- Disponibile
- Contatta il proprietario
- Utenze
- Contatta il proprietario
- Deposito
- Contatta il proprietario
- Affitto anticipato
- Contatta il proprietario
Posizione