3 stanza appartamento a Martina Franca
-
Area
- 67 m²
-
Tipo di proprietà
- Appartamento
-
Stanze
- 3 stanze
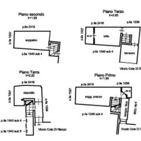
Si affitta solo a persone in trasferta di lavoro (insegnanti, medici, infermieri) (no gruppi, no famiglie, no cambio residenza). L’immobile è un grazioso terracielo di 67mq, a due passi dal Palazzo Ducale, in una zona tranquilla e servita: scuole, ospedale, supermercati e servizi a portata di mano. Composizione: Piano Terra: Lavanderia completa (lavatrice, asciugatrice) e deposito. 1° Piano: Soggiorno/sala da pranzo, cucina attrezzata, bagnetto di servizio. Soppalco: Studio o stanza con letti singoli, ripostiglio. 2° Piano: Camera matrimonia...
- Affitto
- 500 € al mese
- Posizione
- 74015, Martina Franca
- Periodo di affitto
- -
- Proprietario verificato
- Sì
- Data
- 21 giorni fa
- Disponibile
- Contatta il proprietario
- Utenze
- Contatta il proprietario
- Deposito
- Contatta il proprietario
- Affitto anticipato
- Contatta il proprietario
Posizione