3 stanza appartamento a Milano
-
Area
- 84 m²
-
Tipo di proprietà
- Appartamento
-
Stanze
- 3 stanze
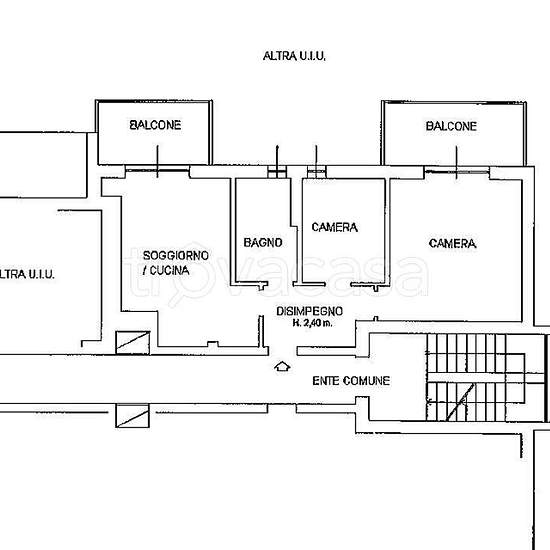
Glo Value Real Estate propone il locazione In zona strategica e ricca di servizi, precisamente in *Via Guglielmo Pecori Giraldi n. 5, al piano quarto di uno stabile di recente costruzione con ascensore e servizio di portineria al piano terra, elegante trilocale moderno completamente arredato, dotato di terrazzo e garage privato. L'appartamento è composto da ingresso su disimpegno, zona giorno con cucina a vista e uscita sul terrazzo, camera matrimoniale con balcone, seconda camera singola e bagno finestrato con box doccia. L'immobile si pres...
- Affitto
- 1.600 € al mese
- Posizione
- 20139, Milano
- Periodo di affitto
- -
- Proprietario verificato
- Sì
- Data
- 12 giorni fa
- Disponibile
- Contatta il proprietario
- Utenze
- Contatta il proprietario
- Deposito
- Contatta il proprietario
- Affitto anticipato
- Contatta il proprietario
Posizione