3 stanza appartamento a Monza
-
Area
- 110 m²
-
Tipo di proprietà
- Appartamento
-
Stanze
- 3 stanze
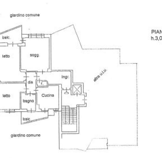
Monza - centro storico: direttamente in centro storico, in palazzo signorile, royal immobili & investimenti propone in locazione elegante ed ampio trilocale di 110 mq. L'immobile è situato al 3° piano di uno stabile con ascensore e portineria full - Time. Si compone di ingresso in soggiorno, ripostiglio, cucina abitabile con balcone, disimpegno notte con camera da letto matrimoniale con balcone, seconda camera e bagno finestrato con accesso al secondo balcone. L'immobile viene consegnato parzialmente arredato (cucina completa di elettrodomes...
Nel quartiere
- Alimentari: Carrefour Express -
- 400 m
- Stazione ferroviaria: Monza -
- 800 m
- Fitness: Lady'n'move -
- 200 m
- Asilo: Asilo Nido Centro -
- 500 m
- Sport: Palestra -
- 2.6 km
- Affitto
- 1.500 € al mese
- Posizione
- 20900, Monza
- Periodo di affitto
- -
- Proprietario verificato
- Sì
- Data
- 10 giorni fa
- Disponibile
- Contatta il proprietario
- Utenze
- Contatta il proprietario
- Deposito
- Contatta il proprietario
- Affitto anticipato
- Contatta il proprietario
Posizione