3 stanza appartamento a Roma
-
Area
- 77 m²
-
Tipo di proprietà
- Appartamento
-
Stanze
- 3 stanze
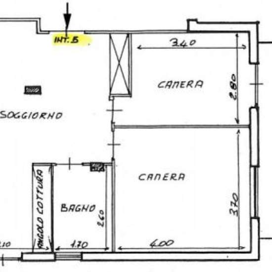
L’appartamento occupa il piano rialzato di una palazzina in cortina di 4 piani, è composto di un soggiorno all’americana con angolo cottura, due camere da letto, di cui una con affaccio su balcone, un bagno con doccia e soppalco. Considerando la posizione, è ideale per un affitto stagionale ottobre maggio / giugno settembre (completamente arredato, attrezzato ed accessoriato). L’appartamento è dotato di riscaldamento autonomo, climatizzatore ed è protetto da inferiate zanzariere e porta blindata; eventuali pertinenze (box, posto auto) sono o...
- Affitto
- 900 € al mese
- Posizione
- 00121, Roma
- Periodo di affitto
- -
- Proprietario verificato
- Sì
- Data
- 31 giorni fa
- Disponibile
- Contatta il proprietario
- Utenze
- Contatta il proprietario
- Deposito
- Contatta il proprietario
- Affitto anticipato
- Contatta il proprietario
Posizione