3 stanza appartamento a Roma
-
Area
- 120 m²
-
Tipo di proprietà
- Appartamento
-
Stanze
- 3 stanze
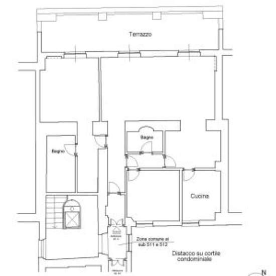
Vi proponiamo questo delizioso ed esclusivo appartamento in via San Nicola da Tolentino, traversa di Piazza Barberini Quarto piano di un palazzo signorile unica proprieta' completamente ristrutturato Composto da corridoio d' ingresso, ampio soggiorno, tinello, cucina abitabile, due stanze da letto di cui una con bagno interno con vasca idromassaggio, bagno nel corridoio; comoda terrazza vivibile di circa 20 mq Appena ristrutturato, non ammobiliato, climatizzato, termoautonomo Al piano superiore disponiamo anche dell' attico in locazione di d...
- Affitto
- 4.500 € al mese
- Posizione
- 00187, Roma
- Periodo di affitto
- -
- Proprietario verificato
- Sì
- Data
- 19 giorni fa
- Disponibile
- Contatta il proprietario
- Utenze
- Contatta il proprietario
- Deposito
- Contatta il proprietario
- Affitto anticipato
- Contatta il proprietario
Posizione