3 stanza appartamento a Roma
-
Area
- 80 m²
-
Tipo di proprietà
- Appartamento
-
Stanze
- 3 stanze
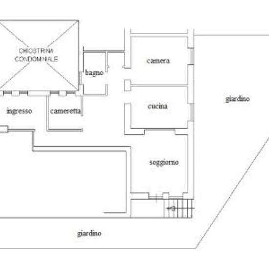
Ostia levante, piazza Alberto Alessio, a due passi dalla Stazione “Stella Polare” al piano terra con ingresso sia condominiale che indipendente, appartamento di circa 80 mq, composto da ingresso, soggiorno, camera, cameretta, cucina, servizio, giardino di 80 mq (con cancello su strada); completa la proprietà una cantina di circa 5 mq al piano seminterrato. L’appartamento è dotato di riscaldamento autonomo con caldaia a gas; viene affittato arredato. Canone richiesto euro 900 mensili. Affittasi con contratto a canone concordato 3 anni + 2 con...
- Affitto
- 900 € al mese
- Posizione
- 00122, Roma
- Periodo di affitto
- -
- Proprietario verificato
- Sì
- Data
- 30 giorni fa
- Disponibile
- Contatta il proprietario
- Utenze
- Contatta il proprietario
- Deposito
- Contatta il proprietario
- Affitto anticipato
- Contatta il proprietario
Posizione