3 stanza appartamento a Sedriano
-
Area
- 130 m²
-
Tipo di proprietà
- Appartamento
-
Stanze
- 3 stanze
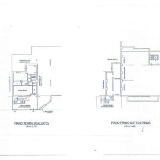
Rif: dg343 - rif: dg343 Sedriano, bella zona residenziale e vicina al centro, in palazzina di ultima generazione appena ultimata (2022), di poche unità abitative, disponiamo di trilocale duplex di circa 130 mq. Non arredato posto al primo piano rialzato di due con ascensore. L'immobile è nuovo, gode di ampi spazi facilmente arredabili ed è così disposto: ingresso, ampio soggiorno con cucina a vista ed uscita su comoda balconata, camera matrimoniale con cabina armadio in muratura, bagno con vasca finestrato secondo bagno con doccia non finest...
- Affitto
- 1.350 € al mese
- Posizione
- 20018, Sedriano
- Periodo di affitto
- -
- Proprietario verificato
- Sì
- Data
- 14 giorni fa
- Disponibile
- Contatta il proprietario
- Utenze
- Contatta il proprietario
- Deposito
- Contatta il proprietario
- Affitto anticipato
- Contatta il proprietario
Posizione