3 stanza appartamento a Sestola
-
Area
- 55 m²
-
Tipo di proprietà
- Appartamento
-
Stanze
- 3 stanze
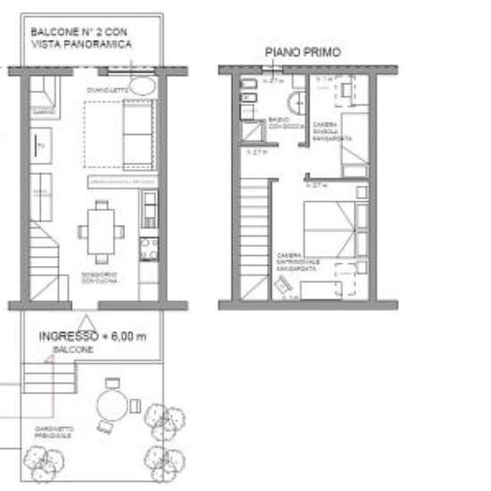
La tariffa indicata è per un "mese tipo" in bassa stagione. Le tariffe sono variabili in base alla stagione ed alla durata del soggiorno. Solo soggiorni brevi (no annuali e no stagionali). Le utenze e le pulizie finali sono incluse. La biancheria viene fornita su richiesta con supplemento. L’appartamento è per max 5 persone. L’appartamento ha l’ingresso autonomo, per accedere all’appartamento è presente una scala esterna su due rampe (vedere la planimetria). In un contesto geografico ideale per chi ama la montagna e l'Appennino modenese, con...
- Affitto
- 2.200 € al mese
- Posizione
- 41029, Sestola
- Periodo di affitto
- -
- Proprietario verificato
- Sì
- Data
- 30 giorni fa
- Disponibile
- Contatta il proprietario
- Utenze
- Contatta il proprietario
- Deposito
- Contatta il proprietario
- Affitto anticipato
- Contatta il proprietario
Posizione