4 stanza appartamento a Alassio
-
Area
- 70 m²
-
Tipo di proprietà
- Appartamento
-
Stanze
- 4 stanze
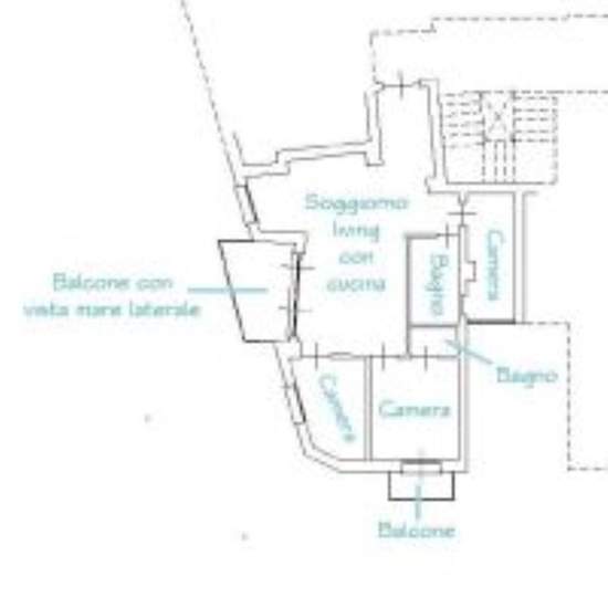
Alassio a 100 metri dal mare nella zona di Levante, nei pressi di piazza Stalla, affittasi ad uso turistico grazioso alloggio ristrutturato al secondo piano con ascensore. L'appartamento ha una dimensione di 70 mq più due balconi. Si compone di ingresso nel soggiorno living con cucina a vista dotata di lavastoviglie, camera da letto matrimoniale, due camere singole e doppi servizi. L'alloggio è dotato di lavatrice, lavastoviglie, forno, tv color, porta blindata. E' disponibile per locazione turistica nei mesi estivi ed invernali, no affitti ...
- Affitto
- 900 € al mese
- Posizione
- 17021, Alassio
- Periodo di affitto
- -
- Proprietario verificato
- Sì
- Data
- 30 giorni fa
- Disponibile
- Contatta il proprietario
- Utenze
- Contatta il proprietario
- Deposito
- Contatta il proprietario
- Affitto anticipato
- Contatta il proprietario
Posizione