4 stanza appartamento a Bologna
-
Area
- 155 m²
-
Tipo di proprietà
- Appartamento
-
Stanze
- 4 stanze
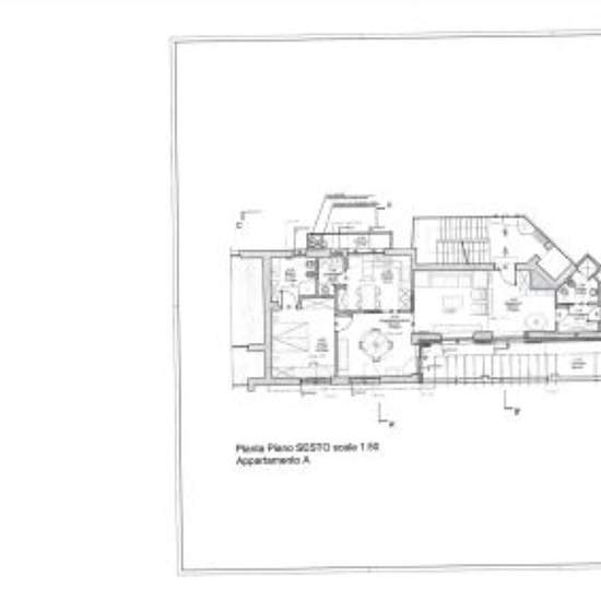
Attico Via Lame, posizione strategica e centralissima, al sesto e ultimo piano di un condominio signorile, proponiamo in locazione con contratto a canone libero 4+4 un meraviglioso attico nuovo, di circa 120 mq, con una strepitosa terrazza panoramica parzialmente arredato. L'attico è stato recentemente ristrutturato integralmente, con finiture di pregio, armadi ed elementi di arredo su misura, pavimenti in rovere, infissi di altissima qualità, ed è composto da ingresso su soggiorno con vista panoramica, sala da pranzo, cucina abitabile compl...
- Affitto
- 3.000 € al mese
- Posizione
- 40122, Bologna
- Periodo di affitto
- -
- Proprietario verificato
- Sì
- Data
- 17 giorni fa
- Disponibile
- Contatta il proprietario
- Utenze
- Contatta il proprietario
- Deposito
- Contatta il proprietario
- Affitto anticipato
- Contatta il proprietario
Posizione