4 stanza appartamento a Firenze
-
Area
- 110 m²
-
Tipo di proprietà
- Appartamento
-
Stanze
- 4 stanze
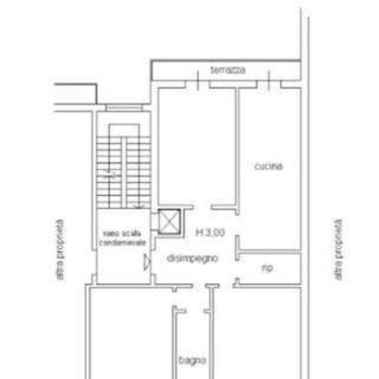
Pressi Lungarno Colombo, si affitta splendido appartamento ristrutturato in ogni sua parte al secondo piano di bel palazzo con ascensore. Composto da ingresso, cucina abitabile, due camere da letto matrimoniali, bagno completo con doccia e due balconi, aria condizionata in tutti gli ambienti e zanzariere. Tapparelle elettriche. Contratto transitorio. Canone mensile € 2000 Utenze a parte. Adatto a studenti per periodi medio brevi. Possibilità di affitto a Società Duomo dista 2,7 km da questo appartamento, mentre Ponte Vecchio si trova a 2,8 k...
- Affitto
- 2.000 € al mese
- Posizione
- 50136, Firenze
- Periodo di affitto
- -
- Proprietario verificato
- Sì
- Data
- 15 giorni fa
- Disponibile
- Contatta il proprietario
- Utenze
- 100 €
- Deposito
- Contatta il proprietario
- Affitto anticipato
- Contatta il proprietario
Posizione