4 stanza appartamento a Firenze
-
Area
- 93 m²
-
Tipo di proprietà
- Appartamento
-
Stanze
- 4 stanze
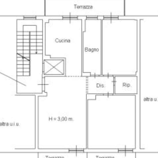
Contratto lungo 4+4! Isolotto - in strada interna molto silenziosa, proponiamo in locazione affascinante appartamento quadrilocale completamente e accuratamente ristrutturato e completamente arredato, situato al piano primo con ascensore, in complesso condominiale in ottimo stato. L’immobile, molto luminoso e arioso grazie alla sua areazione contrapposta, è composto da ingresso su grande soggiorno con accesso alla prima terrazza, cucina abitabile con accesso alla seconda terrazza tergale con angolo lavanderia, camera matrimoniale con accesso...
- Affitto
- 1.400 € al mese
- Posizione
- 50142, Firenze
- Periodo di affitto
- -
- Proprietario verificato
- Sì
- Data
- 11 giorni fa
- Disponibile
- Contatta il proprietario
- Utenze
- Contatta il proprietario
- Deposito
- Contatta il proprietario
- Affitto anticipato
- Contatta il proprietario
Posizione