4 stanza appartamento a Laspezia
-
Area
- 120 m²
-
Tipo di proprietà
- Appartamento
-
Stanze
- 4 stanze
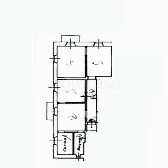
La Spezia – Piazza Brin, Centro Storico, nei pressi della stazione Affitto appartamento arredato per studenti universitari In posizione strategica, nel cuore del centro storico di La Spezia e a pochi passi dalla stazione, e dal polo universitaio, proponiamo in locazione ampio appartamento arredato, ideale per studenti universitari. L’immobile, situato al secondo piano servito da ascensore, è composto da 2 camere da letto, soggiorno, cucina abitabile, bagno finestrato e due balconi. Disponibile con contratto universitario per studenti fuori s...
- Affitto
- 750 € al mese
- Posizione
- 19122, Laspezia
- Periodo di affitto
- -
- Proprietario verificato
- Sì
- Data
- 29 giorni fa
- Disponibile
- Contatta il proprietario
- Utenze
- Contatta il proprietario
- Deposito
- Contatta il proprietario
- Affitto anticipato
- Contatta il proprietario
Posizione