4 stanza appartamento a Palermo
-
Area
- 120 m²
-
Tipo di proprietà
- Appartamento
-
Stanze
- 4 stanze
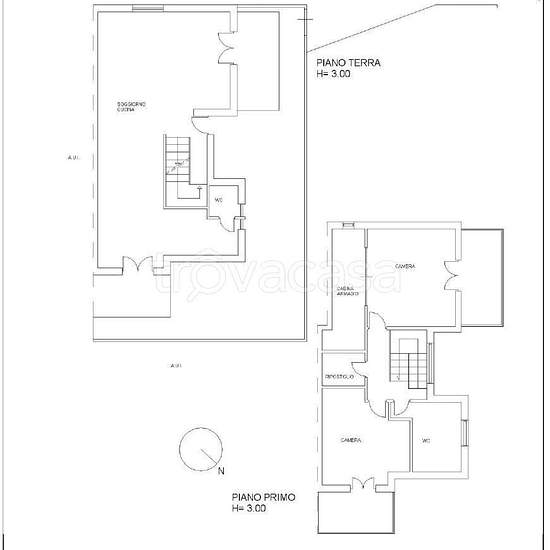
In via Pazienza, a soli 1 km dalla rinomata spiaggia di Mondello, proponiamo in locazione una raffinata porzione di villa bifamiliare, caratterizzata da ingresso indipendente e ampio spazio esterno esclusivo. La proprietà, recentemente ristrutturata e finemente arredata, si distingue per la qualità delle finiture e la cura dei dettagli, offrendo un ambiente moderno e accogliente. L’abitazione si sviluppa su due livelli e si estende per circa 120 mq. Al piano terra si sviluppa un’ampia e luminosa zona living, dove area relax, sala da pranzo e...
- Affitto
- 2.100 € al mese
- Posizione
- 90151, Palermo
- Periodo di affitto
- -
- Proprietario verificato
- Sì
- Data
- 10 giorni fa
- Disponibile
- Contatta il proprietario
- Utenze
- Contatta il proprietario
- Deposito
- Contatta il proprietario
- Affitto anticipato
- Contatta il proprietario
Posizione