4 stanza appartamento a Roma
-
Area
- 120 m²
-
Tipo di proprietà
- Appartamento
-
Stanze
- 4 stanze
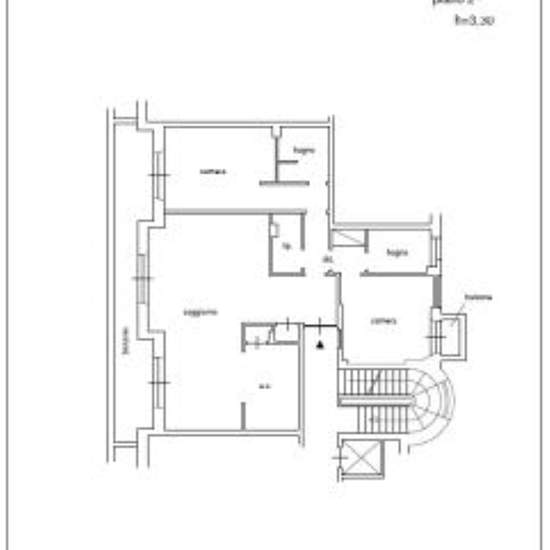
Nel cuore della zona del Lungotevere Flaminio, a pochi passi dal Circolo Canottieri lazio e da Piazzale delle Belle Arti, proponiamo la locazione di un bellissimo appartamento posto al secondo piano di un elegante palazzo dotato di servizio di portineria ed ascensore. L' immobile sviluppa una superficie di 120 mq composta da una confortevole zona giorno suddivisa in soggiorno e sala pranzo con adiacente cucina funzionale con comoda porta scorrevole, oltre balcone con accesso diretto dagli ambienti della zona living. La zona notte è composta ...
- Affitto
- 2.500 € al mese
- Posizione
- 00196, Roma
- Periodo di affitto
- -
- Proprietario verificato
- Sì
- Data
- 12 giorni fa
- Disponibile
- Contatta il proprietario
- Utenze
- Contatta il proprietario
- Deposito
- Contatta il proprietario
- Affitto anticipato
- Contatta il proprietario
Posizione