4 stanza appartamento a Roma
-
Area
- 95 m²
-
Tipo di proprietà
- Appartamento
-
Stanze
- 4 stanze
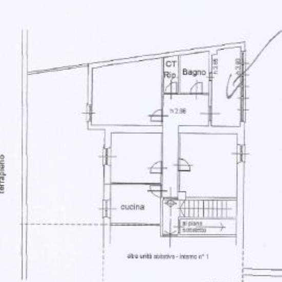
Cassia La Storta proponiamo in locazione un immobile posto al primo piano con 4 stanze e 1 servizio, ripostiglio, veranda terrazzo di circa 40 mq. Si affitta uso ufficio, scuola privata, centro estetico e/o studio medico a referenziati, canone di locazione mensile € 1.100. Per informazioni o appuntamenti tel. 06.
- Affitto
- 1.100 € al mese
- Posizione
- 00123, Roma
- Periodo di affitto
- -
- Proprietario verificato
- Sì
- Data
- 30 giorni fa
- Disponibile
- Contatta il proprietario
- Utenze
- Contatta il proprietario
- Deposito
- Contatta il proprietario
- Affitto anticipato
- Contatta il proprietario
Posizione