4 stanza appartamento a Roma
-
Area
- 134 m²
-
Tipo di proprietà
- Appartamento
-
Stanze
- 4 stanze
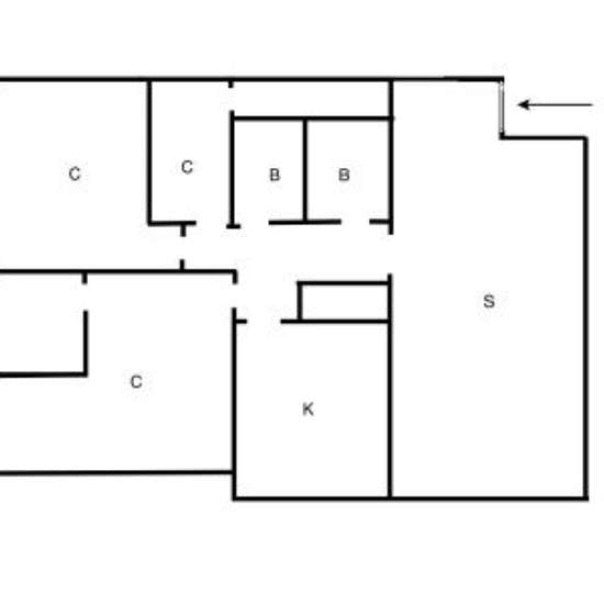
Via valentino mazzola – Delizioso appartamento in comprensorio con piscina e campi da tennis A pochi minuti dalla commerciale Via Baldovinetti e dal Centro Commerciale “I Granai”, in condominio signorile con portiere, piscina e campi da tennis, proponiamo un bellissimo appartamento di mq. 130, completamente ristrutturato ed arredato, posto all’8° piano e composto da ampio salone, cucina abitabile, 3 camere da letto, di cui due matrimoniali ed una singola, due bagni con doccia. Completa l’immobile un posto auto coperto. L’appartamento è dotat...
- Affitto
- 1.950 € al mese
- Posizione
- 00142, Roma
- Periodo di affitto
- -
- Proprietario verificato
- Sì
- Data
- 30 giorni fa
- Disponibile
- Contatta il proprietario
- Utenze
- Contatta il proprietario
- Deposito
- Contatta il proprietario
- Affitto anticipato
- Contatta il proprietario
Posizione