4 stanza appartamento a Taranto
-
Area
- 150 m²
-
Tipo di proprietà
- Appartamento
-
Stanze
- 4 stanze
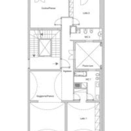
Taranto in Via Acclavio 28, nel cuore della città di Taranto, proponiamo in locazione un elegante appartamento di circa 150 mq, situato all'interno di un contesto signorile e caratterizzato da ambienti ampi, luminosi e rifiniti con materiali di pregio. L’immobile si sviluppa su un unico livello e accoglie gli ospiti in un’ampia zona giorno composta da soggiorno e zona pranzo, seguita da una cucina abitabile con affaccio su balcone interno. La zona notte include due camere da letto: una camera matrimoniale con balconcino su strada e bagno pri...
- Affitto
- 1.800 € al mese
- Posizione
- 74123, Taranto
- Periodo di affitto
- -
- Proprietario verificato
- Sì
- Data
- 11 giorni fa
- Disponibile
- Contatta il proprietario
- Utenze
- Contatta il proprietario
- Deposito
- Contatta il proprietario
- Affitto anticipato
- Contatta il proprietario
Posizione