4 stanza appartamento a Varese
-
Area
- 115 m²
-
Tipo di proprietà
- Appartamento
-
Stanze
- 4 stanze
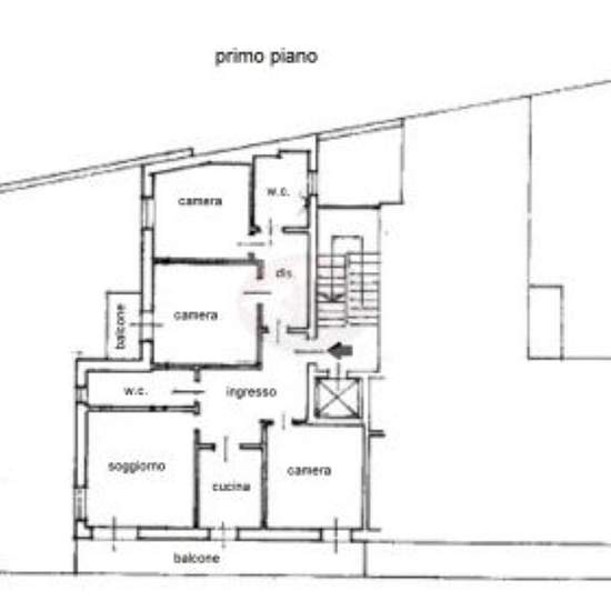
Appartamento di 115 mq posto al primo piano di un palazzo costruito negli anni 70 nella zona centrale, adiacente a Piazza della Repubblica. E' composto da ampio ingresso, soggiorno, cucina abitabile, 3 camere, doppi servizi e 2 balconi, oltre cantina al piano interrato. Riscaldamento centralizzato con contabilizzatori di calorie, serramenti in legno, pavimenti in marmo bianco, parquet e ceramiche. Libero subito. 750 Euro mensili + 350 euro mensili di spese condominiali. Non sono ammessi animali. Primo contatto scrivere referenze nel riquadro...
- Affitto
- 750 € al mese
- Posizione
- 21100, Varese
- Periodo di affitto
- -
- Proprietario verificato
- Sì
- Data
- 31 giorni fa
- Disponibile
- Contatta il proprietario
- Utenze
- Contatta il proprietario
- Deposito
- Contatta il proprietario
- Affitto anticipato
- Contatta il proprietario
Posizione