4 stanza casa a Bologna
-
Area
- 148 m²
-
Tipo di proprietà
- Casa
-
Stanze
- 4 stanze
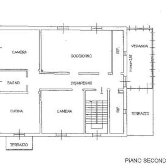
Richiesta email di presentazione all'indirizzo EMAIL In una tranquilla via interna di Via Toscana, ben collegata al centro di Bologna si affitta al 2° ed ultimo piano di una piccola palazzina bolognese circondata dal verde, un attico con veranda e terrazza abitabili. L'immobile è cosi composto: Ampio ingresso, doppio salone, cucina abitabile con balcone, due camere da letto matrimoniali (la terza ottenibile), veranda con vetrate a tutta parete e terrazza abitabile, un bagno e due comodi ripostigli. Completa la proprietà una cantina e volendo...
- Affitto
- 1.300 € al mese
- Posizione
- 40141, Bologna
- Periodo di affitto
- -
- Proprietario verificato
- Sì
- Data
- 30 giorni fa
- Disponibile
- Contatta il proprietario
- Utenze
- Contatta il proprietario
- Deposito
- Contatta il proprietario
- Affitto anticipato
- Contatta il proprietario
Posizione