4 stanza casa a Frosinone
-
Area
- 150 m²
-
Tipo di proprietà
- Casa
-
Stanze
- 4 stanze
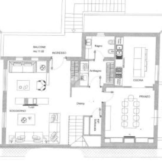
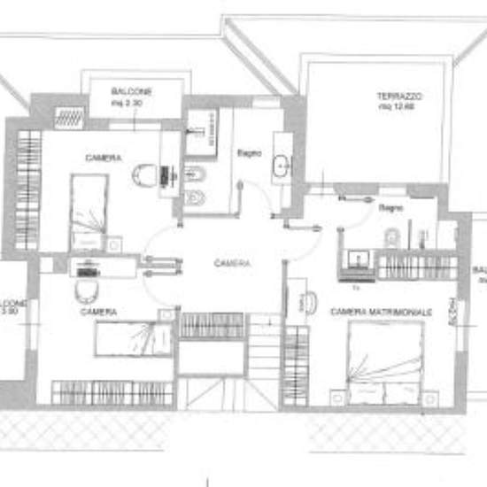
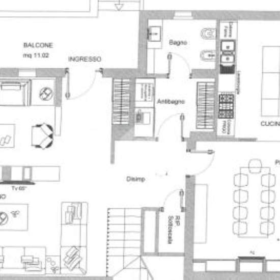
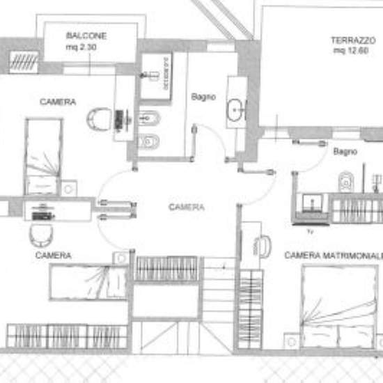
Frosinone, via la botte -disponibile da gennaio 2026 Nel cuore di una tranquilla e riservata zona residenziale, proponiamo in affitto una splendida casa semindipendente sviluppata su più livelli, perfetta per chi desidera vivere in un ambiente elegante, moderno e funzionale senza rinunciare alla comodità degli spazi. Varcando la soglia, si viene accolti da una raffinata zona giorno al piano terra, dove la cucina si integra armoniosamente con una sala da pranzo luminosa e un salone in open space che invita alla convivialità e al relax. Gli am...
- Affitto
- 1.300 € al mese
- Posizione
- 03100, Frosinone
- Periodo di affitto
- -
- Proprietario verificato
- Sì
- Data
- 29 giorni fa
- Disponibile
- Contatta il proprietario
- Utenze
- Contatta il proprietario
- Deposito
- Contatta il proprietario
- Affitto anticipato
- Contatta il proprietario
Posizione