6 stanza appartamento a Castelfranco Veneto
-
Area
- 186 m²
-
Tipo di proprietà
- Appartamento
-
Stanze
- 6 stanze
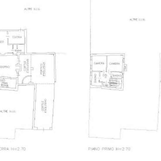
Lussuoso appartamento inserito all’ interno dello storiche mura di Castelfranco Veneto, completamente restaurato nel 2013. Dotato di ogni confort: impianto di riscaldamento a pavimento, raffrescamento a pavimento (con deumidificatore), impianto di allarme e di video sorveglianza condominiale. Disposto su due piani, con cucina – soggiorno, ampio salotto e servizio igienico al piano terra per una superfice di circa 100 mq. Al piano primo, due camere da letto matrimoniali, ripostiglio e due servizi igienici (vasca e doccia) per una superficie d...
- Affitto
- 1.500 € al mese
- Posizione
- 31033, Castelfranco Veneto
- Periodo di affitto
- -
- Proprietario verificato
- Sì
- Data
- 30 giorni fa
- Disponibile
- Contatta il proprietario
- Utenze
- Contatta il proprietario
- Deposito
- Contatta il proprietario
- Affitto anticipato
- Contatta il proprietario
Posizione